Details
Guildford Park Road, Guildford, GU2
£350,000 Freehold
(Sold Subject To Contract)
Description
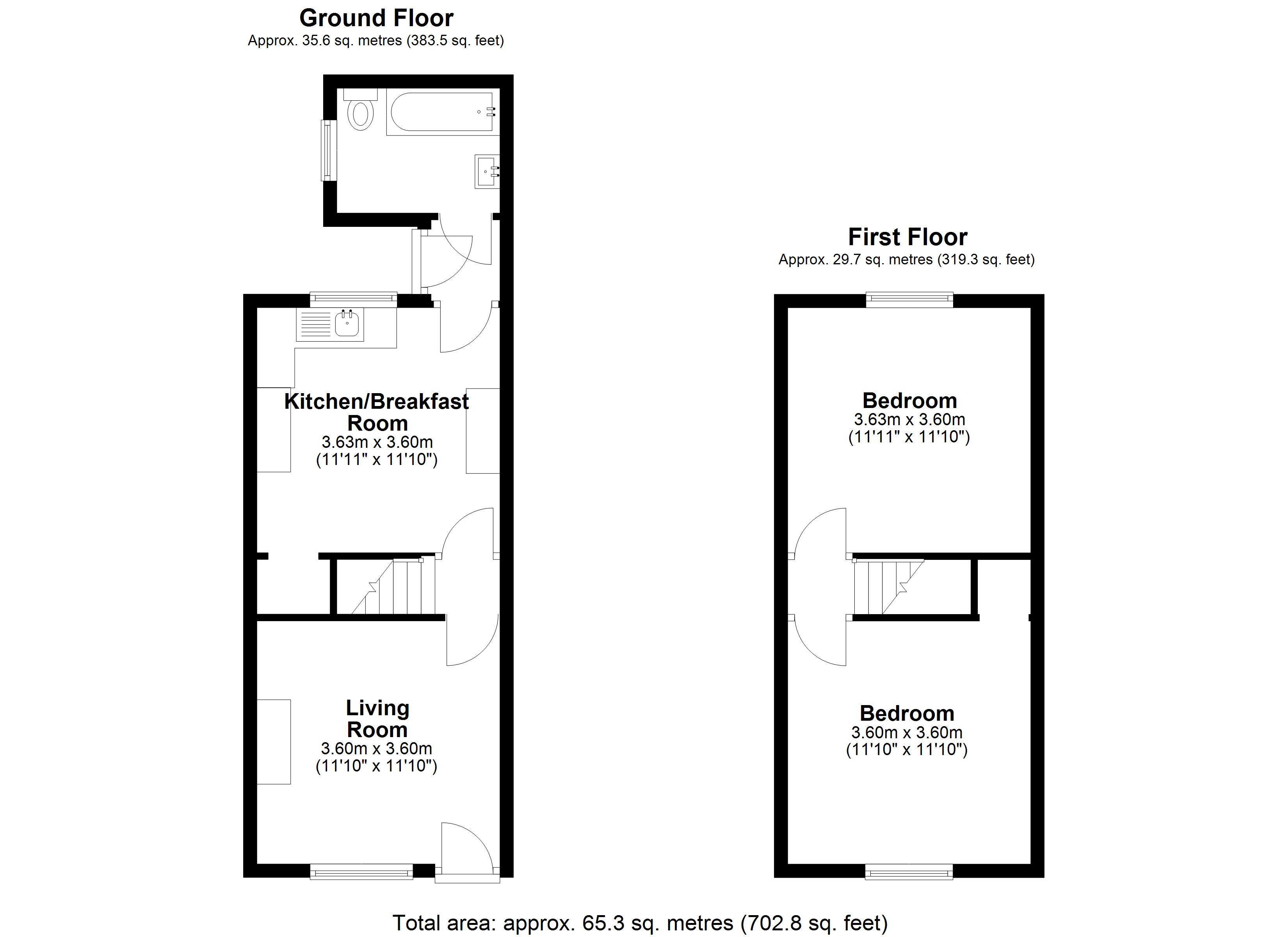
This conveniently located terraced home comes to the market in need of modernisation and really offers a buyer the chance to stamp their mark. The ground floor benefits from a lounge, kitchen/Break Fast room and bathroom whilst the first floor offers two double bedrooms. There is also an enclosed. low maintenances rear garden. Local amenities are very nearby as is the main line station but to fully appreciate the potential viewings are highly recommended. NO ONWARD CHAIN.
Viewing
Please contact us on Tel: 01483 576300 if you wish to arrange a viewing appointment for this property, or require further information.
Disclaimer
Hipps Estate Agents - GU2 endeavour to maintain accurate depictions of properties in Virtual Tours, Floor Plans and descriptions, however, these are intended only as a guide and purchasers must satisfy themselves by personal inspection.
This conveniently located terraced home comes to the market in need of modernisation and really offers a buyer the chance to stamp their mark. The ground floor benefits from a lounge, kitchen/Break Fast room and bathroom whilst the first floor offers two double bedrooms. There is also an enclosed. low maintenances rear garden. Local amenities are very nearby as is the main line station but to fully appreciate the potential viewings are highly recommended. NO ONWARD CHAIN.
This conveniently located terraced home comes to the market on need of refurbishment and really offers a buyer the chance to stamp their mark. The ground floor benefits from a lounge, kitchen/Break Fast room and bathroom whilst the first floor offers two double bedrooms. There is also an enclosed. low maintenances rear garden. Local amenities are very nearby as is the main line station but to fully appreciate the potential viewings are highly recommended. NO ONWARD CHAIN.
Viewing
Please contact us on Tel: 01483 576300 if you wish to arrange a viewing appointment for this property, or require further information.
Disclaimer
Hipps Estate Agents - GU2 endeavour to maintain accurate depictions of properties in Virtual Tours, Floor Plans and descriptions, however, these are intended only as a guide and purchasers must satisfy themselves by personal inspection.
Features
- No Onward Chain
- Kitchen Breakfast Room
- Lounge
- Two Bedrooms
- Enclosed Rear Garden
- Modernisation Needed
- Convenient location
- Walking Distance To Town
- Walking Distance To Mainline Station
- Must Be Seen
Share

